DZ15LE系列漏电断路器(以下简称漏电断路器)主要适用于交流50Hz,额定工作电压为220V或380V,额定电流至100A的配电网络中用来对人进行间接接触保护,也可用来防止因设备绝缘损坏,产生接地故障电流而引起的火灾危险,并可用来分配电能和保护线路及电源设备的过载和短路,还可作为线路的不频繁转换和电动机的不频繁之用。
漏电断路器按GB140148.2及相关标准设计、制造和检验。

● 周围空气温度:
a)周围空气温度不超过+40℃,目其24h内的平均温度值不超过+35℃。
b)周围空气温度的下限为-5℃;
● 海拔:安装地点的海拔不超过2000m。
● 大气条件:高温度为+40℃时,空气的相对湿度不超过50%,在较低温度下可以允许有较高的相对湿度,例如+20℃时达90%。对由于温度变化偶尔产生在产品上的凝露应采取特殊的措施。
● 污染等级:3极
● 安装类别:Ⅲ极
● 安装条件:
断路器应安装在无冲击振动及无雨雪侵袭的地方:上接线端子接电源侧,下接线端子接负载侧;与垂直面的倾斜度不超过5°
● 电磁环境:适用于环境B
● 漏电断路器安装场所附件的外部磁场在任何方向不超过5倍的地球磁场
DZ15LE断路器型号及其含义

上海人民电器开关厂常规型号有:DZ15LE-40, DZ15LE-100
● 结构
本系列漏电断路器是电流动作电子式漏电断路器,主要部件有:主开关(带过载和短路保护的断路器)、零序电流互感器、电子控制部分、漏电脱扣器、试验装置组成。全部零件安装在一个塑料外壳中。
当被保护电路中出现过载和短路时,液态式脱扣器或双金属复式脱扣器完成延时或瞬时脱扣动作而使漏电断路器分闸,从而切断电源起到过载和短路保护作用。
当被保护电路中有漏电或人身触电时,只要剩余电流(漏电电流)达到额定剩余动作电流值时,零序电流互感器的二次绕组中输出信号可使可控硅触发导通,并通过漏电脱扣器使漏电断路器动作,从而切断电源,起到漏电或触电保护作用。工作原理见图1.

● 漏电断路器基本参数见表1

注:额定剩余电流Ino=0.5In

1. 对于In≤30mA的漏电断路器,5In可用0.25A取代。
2. 按注1)采用0.25A时,则10In为0.5A.
● 额定短路分断能力、额定剩余接通分断能力应不低于表3的规定。

● 操作循环次数与试验参数应符合表4的规定

● 过电流脱扣器的保护特性
1. 短路保护特性
断路器短路保护电流整定值见表5

● 漏电断路器过电流脱扣器反时限断开动作特性
a)配电保护用漏电断路器反时限断开动作特性见表6

b)电动机保护用漏电断路器断开动作特性见表7

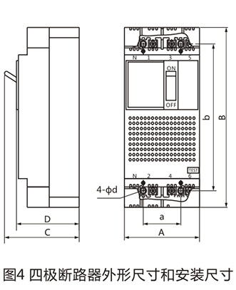
本系列漏电断路器的外形尺寸(含防护罩)和安装尺寸符合表8及图2-4要求




用户订货时必须说明:
● 漏电断路器的名称和型号;
● 漏电断路器的额定电流(A);
● 漏电断路器的额定剩余电流(mA);
● 漏电断路器的保护种类;
● 极数(4,:客户未注明是产品出厂为三极四线);
● 数量;
● 例如:订购DZ15LE-100漏电断路器,四极,配电保护用。额定电流100A,额定剩余动作电流50mA,数量100台;额定电流63A,额定剩余动作电流75mA,数量75台。
可写为:DZ15LE-100/3N901 100A,50mA,100台;
DZ15LE-100/3N901 63A,75mA,50台。
关键词:上海人民电器开关厂,DZ15LE-40,DZ15LE-100,DZ15LE漏电断路器