RT16系列有填料封闭管式刀形触头熔断器(以下简称熔断器),适用于交流50Hz,额定电压400V、500V或660V,额定电流至1600A及以下的工业电气配电装置中,具有体积小、重量轻、分断能力高等特点,广泛用于电气设备的过载保护和短路保护。
熔断器符合GB13539及其相关标准。
zhanshi1.jpg)
zhanshi.jpg)

1、熔断器的基本参数

2、熔断器的约定时间和约定电流

注:1)按熔断器分标规定;
2)对“gM”熔断体见GB13539.1.7.1条
3、熔断器的额定耗散功率与接受功率

4、熔断体的分断范围为:g
熔断体的使用类别为:G
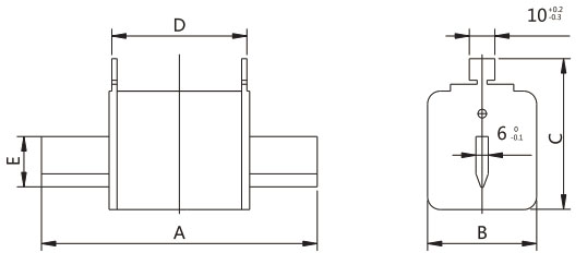
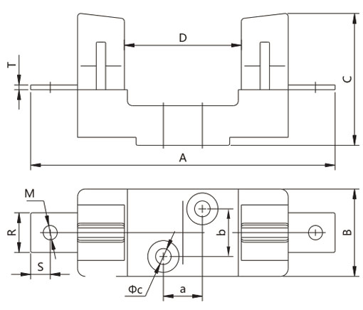
1、熔断体的外形与安装尺寸


2、熔断器底座的外形与安装尺寸


注:RT16-00C底座尺寸与NT00相同
3.载熔器的外形尺寸

1、熔断器可分为带撞击器与不带撞击器两种,主要由熔断体和底座组成,熔断体的触刀采用刀形插入式结构。
2、熔断器允许垂直、水平或倾斜安装,安装时应注意电气间隙不小于8mm,爬电距离不小于12mm。
3、熔断器联接导线的截面积:160A为70mm²、250A为120mm²、400A为240mm²、630A为12mm²。
4、若熔断器的红色指示器凸出,表明熔断体已熔断,必须换上型号和尺寸等参数相同的熔断体,切勿以铜丝代替,调换熔断体时请注意去除底座上的尘埃等污物。
5、若用户对产品有任何的疑问或好的建议请联系我公司。
1、订购时请详细注明型号、规格等。
2、单独订购底座、熔断体或特殊规格时请详细说明或与我公司联系。
3、熔断器的保护特性曲线请参照熔断器标准GB13539.1、GB13539.2中的相关条款。