产品展示

HGL/Z(转换开关)隔离开关

一,适用范围

HGL系列隔离开关(以下简称为开关),适用于交流50Hz、额定电压400V、约定发热电流至3200A的工企业配电设备中,用作不频繁接通与分断电流及电气隔离之用(1000A以上只用作电气隔离),广泛应用于建筑、电力、石油化工及其他行业的配电系统和自动化系统中。

HGL(Z)双投转换隔离开关,由两台HGL隔离开关上下叠装或左右并装而成,适用于双路电源的切换或两台负载设备的转换及安全隔离等。

开关造型美观、新颖简洁、结构简单、操作方便,符合IEC60947-3、GB/T14048.3标准,是同类产品的选择!

 

二,型号含义

常规型号:HGLR-160/3,HGLR-250/3,HGLR-400/3,HGLR-630/3

四,结构特征

● 开关具有3极、4极(3极+可通断中性极)之分。
● 开关主要由底座、大盖、小盖、触头系统、操作机构、手柄等部份组成。开关采用弹簧储能、瞬时释放的加速关合机构及同时接通与断开并联双断点的触头结构,极大的提高了开关的电气性能与机械性能。
● 开关采用玻璃纤维增强不饱和聚脂模塑料及手动操作手柄,具有很高的介电性能、防护能力及可靠的操作安全性。
● 透明型开关的大小盖采用高透明、高强度、耐高温的新型材料压制而成,能够直接观察各触头的通断状态与操作机构的运行状态,保证了开关操作时的安全可靠。
● 开关正面设有标记窗口,指示触头的通断状态;可根据需要提供后面观察窗口,直接观察触头的通断状态,保证开关操作的可靠性和安全性。
● 操作手柄可直接装在开关上操作(简称柜内操作),也可通过加长轴在配电柜门外操作(简称柜外操作),提供操作方便。
● 可根据需要提供常开常闭辅助触点及板前板后接线方式,以满足用户的多种需求。
● 在分断位置“0”时,可用两至三把锁锁住手柄,以防止误操作。
● 转换隔离开关具有三个指示位置:“I”表示开关I接通、开关Ⅱ断开;“0”表示开关I、开关Ⅱ都断开、开关I断开。

 

三,主要技术参数

●HGL系列隔离开关的主要技术参数(见下表)

● HGL(Z)双投转换隔离开关的主要参数与HGL相对应。

 

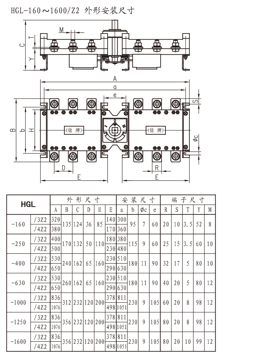
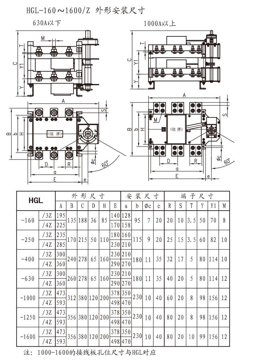
五,外形及安装尺寸

商务
询价

企业商务询价
微信二维码

项目
咨询

企业项目咨询
微信二维码

电话
咨询

0577-62333333
客服热线